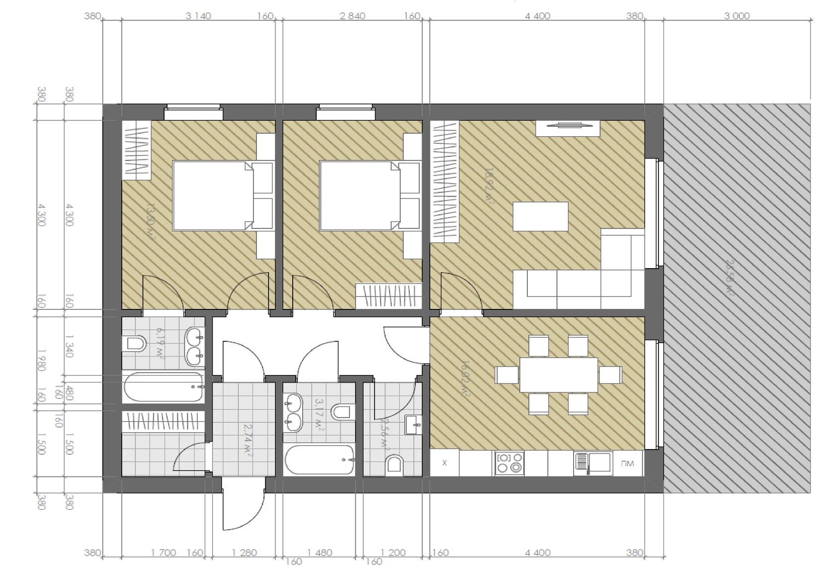
фундамент монолитный ростверк по сваям с утеплением/ мелкозаглубленная лента/ монолитная плита - на основании результатов геологии, включено в цену монолитные стены с утеплением, перекрытие - для плоской кровли
Вернуться
Теплый контур с коммуникациями
р.
р.
Оставить заявку
Вернуться
Черновая отделка, теплый пол
р.
р.
Оставить заявку
фундамент монолитный ростверк по сваям с утеплением, монолитные стены с утеплением, перекрытие с утеплением, кровля плоская или двухскатная на выбор заказчика, вводы для коммуникаций, окна, входная дверь, отделка фасада: покраска в 2 слоя подведены коммуникации: электричество - протянут кабель до 30метров, без покупки мощностей, септик (2 ЖБ колодца), скважина глубиной до 60м2 установлены все межкомнатные перегородки, внутренние стены один слой шпаклевки, разводка теплых полов по всему дому, выводы под радиаторы, полусухая стяжка пола с утеплением; разводка электрики, водоснабжения, водоотведения, электрический котел
Вернуться
Предчистовая отделка white box
р.
р.
Оставить заявку
Вернуться
Чистовая отделка
р.
р.
Оставить заявку
фундамент монолитный ростверк по сваям с утеплением, монолитные стены с утеплением, перекрытие с утеплением, кровля плоская или двухскатная на выбор заказчика, окна, входная дверь, отделка фасада: покраска в 2 слоя подведены коммуникации: электричество - протянут кабель до 30метров, без покупки мощностей, септик (2 ЖБ колодца), скважина глубиной до 60м2 все внутренние стены 2 слоя шпатлевки, разводка теплых полов по всему дому, выводы под радиаторы, полусухая стяжка пола с утеплением; разводка электрики, водоснабжения, водоотведения, электрический котел натяжной потолок из типовых решений обои на стенах, кафель/ламинат на полу, розетки/выключатели по всему дому.
Вернуться
Частичная мебелировка
р.
р.
Оставить заявку
фундамент монолитный ростверк по сваям с утеплением, монолитные стены с утеплением, перекрытие с утеплением, кровля плоская или двухскатная на выбор заказчика, окна, входная дверь, отделка фасада: покраска в 2 слоя подведены коммуникации: электричество - протянут кабель до 30метров, без покупки мощностей, септик (2 ЖБ колодца), скважина глубиной до 60м2 все внутренние стены 2 слоя шпатлевки, разводка теплых полов по всему дому, выводы под радиаторы, полусухая стяжка пола с утеплением; разводка электрики, водоснабжения, водоотведения, электрический котел натяжной потолок из типовых решений обои на стенах, кафель/ламинат на полу, розетки/выключатели по всему дому. мебелирована кухня, гардеробная, прихожая, светильники монтированы по всему дому
Вернуться
Строим по программам
Аккредитованы по всем льготным ипотечным программам в банках:
Вашего дома проходит через ЭСКРОУ счет согласно программы банковского кредитования
При оплате строительства из собственных средств: 40% на устройство фундамента, 40% на возведение стен и кровли,20% на остальные работы (при вариантах сдачи дома базовый- черновая отделка)
точную стоимость вашего дома, сроки сдачи
Вы оставляете заявку на сайте любым способом
Мы связываемся
Мы выполняем работы в срок
Вы начинаете жить в доме, созданном по Вашим правилам!
Оплата за возведение
Мы обозначаем
Заключаем договор
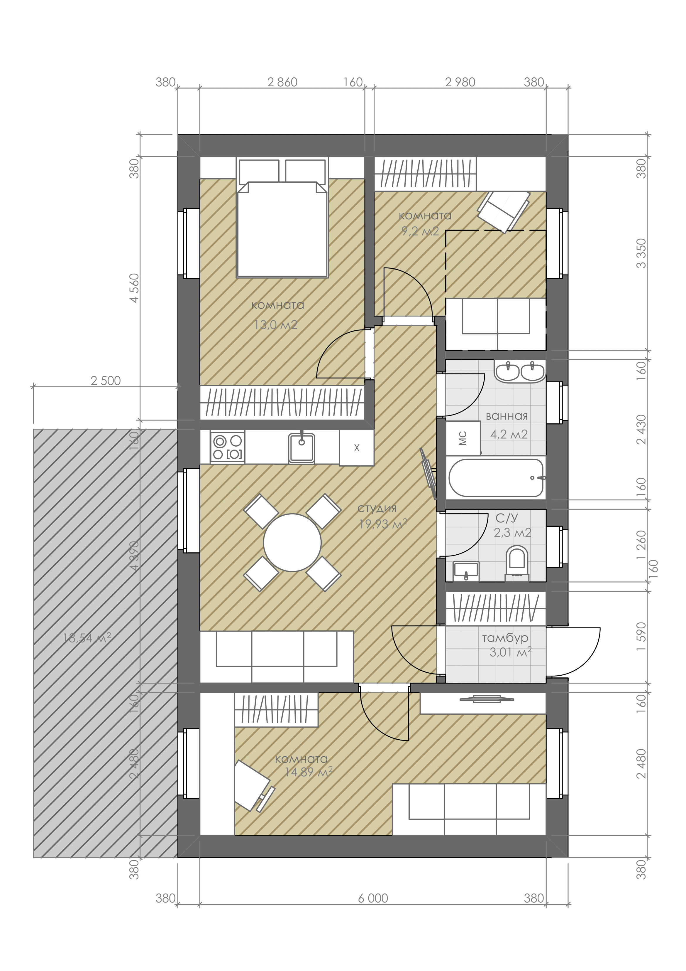
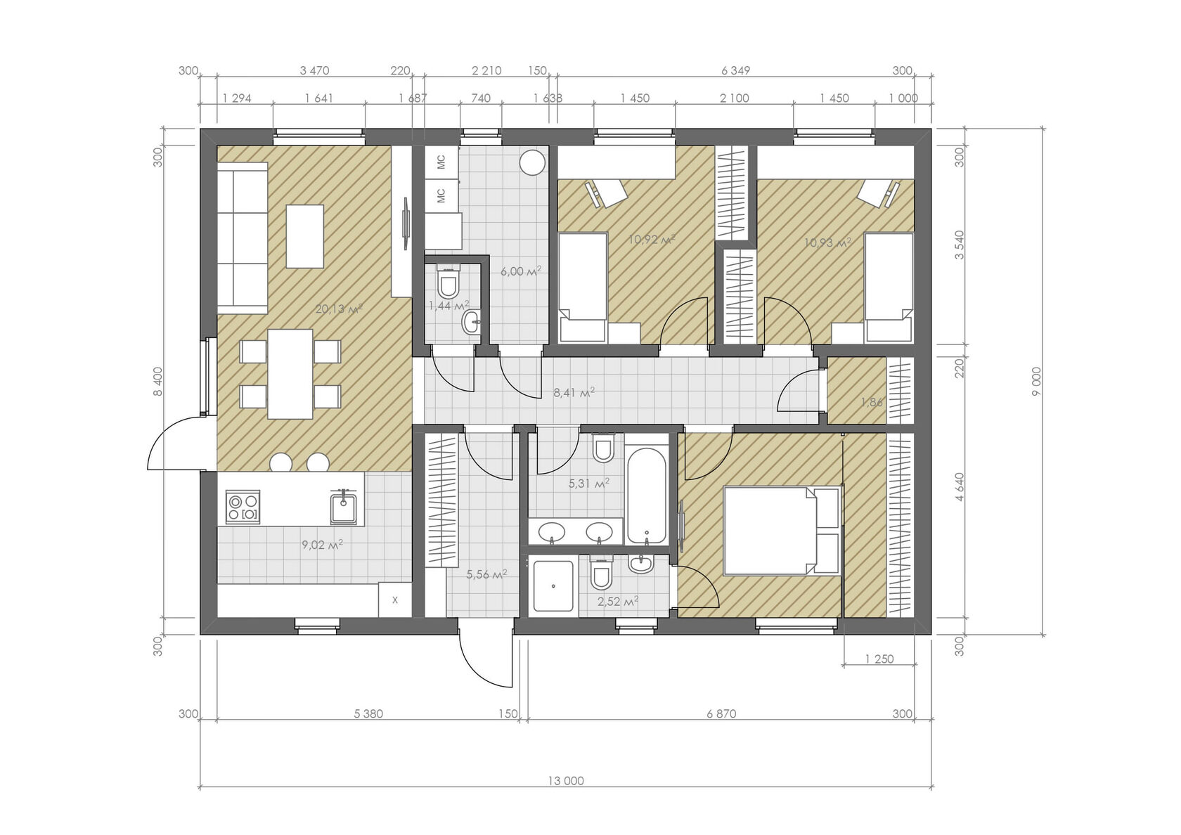
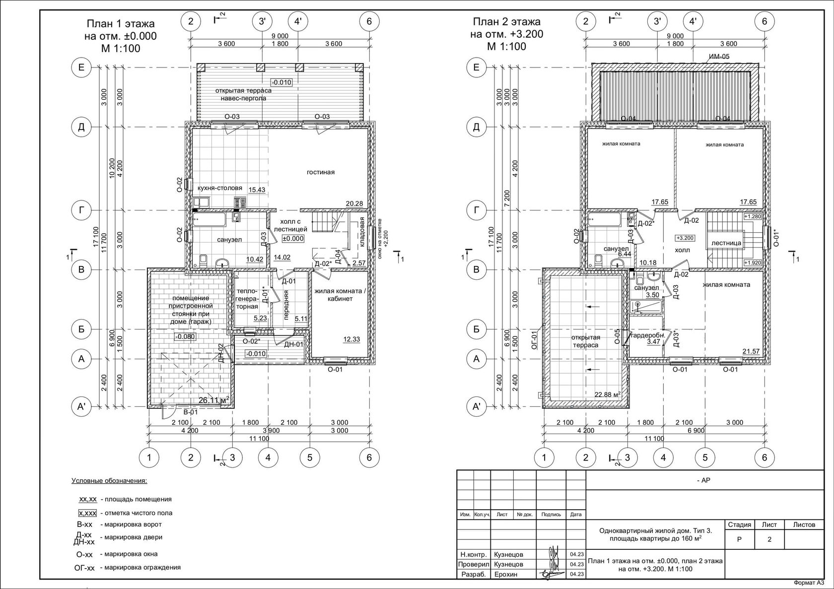
Примеры выполненных работ
Оставить заявку
Раздел для агентов
Отправляя эту форму, Вы уведомляете «Семья-Дом» о клиенте агента. Оставленное Вами уведомление будет отправлено в отдел продаж. Клиент закрепляется за агентом на срок до 60 дней при бронировании и на 30 дней при консультации. Заполняя данное обращение, Вы даете свое согласие на обработку персональных данных в соответствии с ФЗ "О персональных данных". «Семья-Дом» не передает персональные данные третьим лицам.